Jordi Marcè
cronology
- 3 Plazas.Andorra
- Air Conditionning . Mollet del Vallès
- Arcades. Skikda
- Cabeca. Andorra
- Competitiom.Panama
- Competition.Barcelona
- Competition.Barcelona
- Construction Phase 1. Andorra
- Construction. Andorra
- Facilities. Panama
- Maritime Terminal. Mallorca
- Mosque. Calonge.
- Rambla Fanals Civil Works
- Rehabilitation
- Sant Iscle Land Development
- UB Building construction. Barcelona
- Urbanization . Gerona
- Urbanization Cabeca Final P-1
- Urbanization. Altafulla I
- Urbanization. Altafulla II
- Urbanization. Altafulla III
- Urbanization. Andorra
- Urbanization. Guadix Golf
- Urbanization. Platja d'Aro I
- Urbanization. Platja d'Aro II
- Urbanization. Sant Boi
- Urbanization. Torredembarra
- Urbanization.Andorra
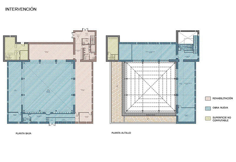
Reform of the Old Abattoir of Calonge and its change as a mosque. Gerona, Spain.
The proposal is the refurbishment an old ship, taking advantage of the architectural potential to transform it into a new multipurpose space for religious, educational and social activities.
It is planned to cover the existing interior courtyard with a large wooden ceiling in order to have a large prayer room.
It is planned to cover the existing interior courtyard with a large wooden ceiling in order to have a large prayer room.
Year: 2016
Location: Calonge, Gerona, Spain
Location: Calonge, Gerona, Spain