Jordi Marcè
cronologia
+

Rehabilitació oficines Allianz Ras. Barcelona

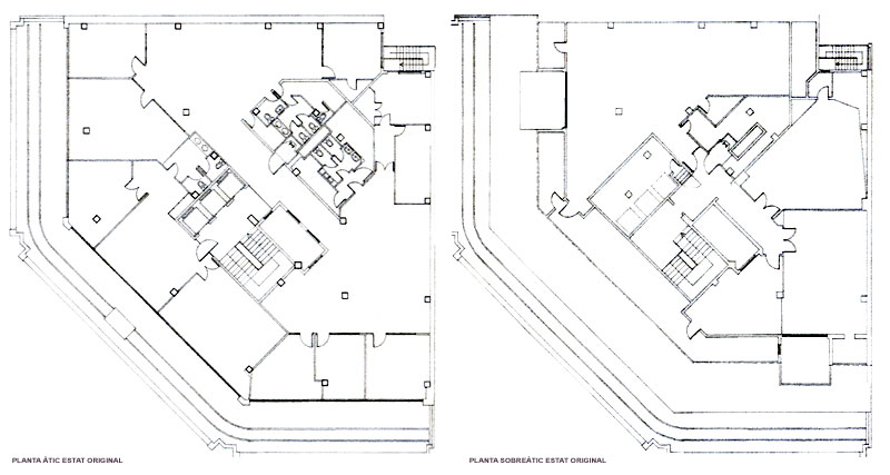
L'estat original de les plantes de les oficines de l'empresa presentava una estructura d'espais molt compartimentada que feien de l'àmbit de treball, un lloc fosc i mal distribuït.
El projecte tracta d'ordenar els espais de manera que la zona de treball sigui un sol espai, respectant al mateix temps la necessitat de crear espais individuals. Aquests espais amb un grau de privacitat superior es distribueixen al perímetre de l'edifici per així alliberar i centralitzar el nucli de comunicacions verticals, convertint-lo en un volum articulador i unificador dels diferents ambients.
Any: 2000
Situació: C/ Aragó, Barcelona
Client: Allianz- RAS