Jordi Marcè
cronologia
- 80 Bungalows Peralada.Espanya
- Aparthotel. Sant Joan Despí.
- Auditori Jardins de Peralada. Projecte d’Execució
- Auditori Peralada – estudi previ
- Beach Club. Palma de Mallorca
- Boutiques. Marina Eivissa
- Business Center Andorra
- Caixa de música. Palma de Mallorca
- Cala Gogo – Entrada Parking
- Cala Gogo – Paisatge
- Cala Gogo – Piscines
- Camping. Tamarit
- Caseta de L'Estany. Roses, Girona
- Casino. Andorra
- Centre Cultural Badalona
- Centre Formació. Madrid
- Centre Formació. Madrid
- Centre Formació. Teià
- Centre Formació. Ávila
- Centre Geriàtric. Barcelona
- Centre comercial. Sabadell
- Club Tennis. Tarragona
- Club Tennis. Vic
- Club privat-sales multiusos-spa
- Clínica. Andorra
- Comercial i habitatges
- Complex Hoteler. Teià
- Complex hoteler i d'oci. Argelia
- Concurs Tennis Tarragona
- Concurs. Barcelona
- Concurs. Barcelona
- Concurs.Panamà
- Croak’s Garden Arquitectura
- Croak’s Garden Exteriors
- Càmping Castell Montgrí - spa
- Càmping Castelló D'Empuries. Girona
- Càmping. Peralada
- Càmping.Palafrugell
- Edifici d'oci.
- Edifici, Pont i Paisatge
- El Principal. Barcelona
- Façana Hotel. Barcelona
- Fàbrica Witt. Belgica
- Gimnàs. Lugo
- Hotel & Spa Cala del Pi
- Hotel 2**
- Hotel Belle Vue
- Hotel Belle Vue executiu
- Hotel Boutique i Casino
- Hotel Caves Peralada
- Hotel Londres. València
- Hotel Murcia. Espanya
- Hotel Sant Pere de Ribes
- Hotel Vaixell Concorde Atlantique, París
- Hotel a Badalona
- Hotel i Oficines. Barcelona
- Hotel. Algeria
- Hotel. Bulgaria
- Hotel. Cuba
- Hotel. Espanya
- Hotel.Bulgaria
- Masterplan. CRM
- Masterplà. Barça City Parc
- Mesquita Sant Feliu de Guíxols
- Mesquita. Calonge.
- Mont-Bar Centre.Castell d'Aro
- Naturalització Camping Castell Mar
- Nau Hispano Suiza Peralada
- Nau PAEC
- Nau PAEC - Executiu
- Noria. Panamà
- Oficines. Barcelona
- Oficines. Barcelona
- Oficines. Mollet
- Paratge Panedes. Llagostera
- Parc Aquàtic. Skikda
- Pavelló Palma de Mallorca
- Pere IV. Recuperació i rehabilitació de façanes
- Piscina Swim Up
- Piscina Swim Up
- Piscina Swim Up-Obra
- Poliesportiu Litoral. Skikda
- Port Canadell, Marina Roses. Girona
- Port Ginesta – Hoteler
- Port València Nord – Centre comercial
- Port València Nord – Dàrsena Nord
- Port València Nord – Dàrsena Sud
- Port València Nord – Restaurant
- Port de Stora. Skikda
- Porta de Peralada
- Projecte Executiu.Barcelona
- Projecte Executiu.Barcelona
- Reforma Piscina 1
- Reforma Piscina 1-Obra
- Reforma Piscina 2
- Reforma Piscina 2-Obra
- Residència universitària Girona
- Restaurant "La Parilla" Peralada
- Sala Edison Figueres
- Suites i Villes*****
- Swim Up. Piscina
- Swim Up. Piscina
- Terminal. Algèria
- Thai Hotel. Panamá
- Torre Gran Jonquera
- Tractament Accessos
- Wellbeing Platform
- Wellbeing Platform-Obra
Re adequació de les oficines a la finca Can Munt de Teià. Barcelona, España
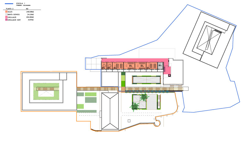
La finca Can Munt és l`ultima de les edificacions senyorials situades en el vessant del Torrent del Molí. La casa principal, és d`estil indiano que data de finals del segle XIX. Es compon, a més, d`una sèrie de construccions annexes d`usos agrícoles actualment en desús. La finca disposa de una gran quantitat d`espais lliures exteriors, que es distribueixen en terrasses a diferents nivells per a anar aconseguint espais plans sobre la petita muntanya.
L`objecte del present projecte és rehabilitar, consolidar i adaptar la casa principal de la finca i,al costat d`altres edificacions de nova construcció, dotar a la finca d`una nova escola que inclourà educació infantil, primària i secundaria amb dues centres separats per sexe (nois y dones) amb accessos i pistes esportives independents.
L`objecte del present projecte és rehabilitar, consolidar i adaptar la casa principal de la finca i,al costat d`altres edificacions de nova construcció, dotar a la finca d`una nova escola que inclourà educació infantil, primària i secundaria amb dues centres separats per sexe (nois y dones) amb accessos i pistes esportives independents.
Client: Can Munt Parc S.L.
Situació: Teià, Barcelona
Superfície àmbit: 5.2 has.
Pressupost: 19.000.000E
Any: 2.008
Situació: Teià, Barcelona
Superfície àmbit: 5.2 has.
Pressupost: 19.000.000E
Any: 2.008