Jordi Marcè
cronologia
- Aparcament Palamós – Estudi previ
- Aparcament Tarragona
- Aparcament públic Cadaqués
- Aparcament. Barcelona
- Aparcament. Barcelona
- Aparcament. Cornellà
- Aparcament. Platja d'aro
- Aparcament. Salou
- Aparcament. Sant Feliu de Guíxols.
- Aparcament. Sants-Montjuïc
- Aparcament. St Feliu
- Aparcament. St.Feliu
- Aparcament. Tortosa.
- Aparcament. Vilafranca
- Aparcament.Madrid
- Aparcaments. Skikda
- Parking i parc. Barcelona
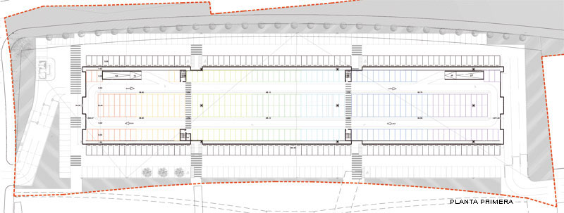
Estudi previ per a l'ampliació del pàrquing de superfície de la Universitat Rovira i Virgili a Tarragona
Es projecta per a l'ampliació del pàrquing de superfície de la Universitat Rovira i Virgili una nova planta creant així un nou edifici per al paisatge de la Universitat. El projecte respecta tots els elements existents del paisatge, los accessos i sortides així com totes les instal·lacions subterrànies i de superfície.
Es dissenyen 224 noves places amb una alçada lliure de 2.40mts sumant un total de 836 places dividides en dues plantes. Les places pintades amb diferents colors dóna vida i jovialitat al projecte.
Es dissenyen 224 noves places amb una alçada lliure de 2.40mts sumant un total de 836 places dividides en dues plantes. Les places pintades amb diferents colors dóna vida i jovialitat al projecte.
Client: U.T.E. VICSAN DIVERSIFICACIÓN, S.L. VICSAN TORREDEMBARRA
Situació: Av. Catalunya, Tarragona.
Superfície d'ampliació: 6.230M2 (224 places)
Any: 2.010
Situació: Av. Catalunya, Tarragona.
Superfície d'ampliació: 6.230M2 (224 places)
Any: 2.010